4055 Rustling Grass Trail, Inman, SC 29349
- 5 beds |
- 3 baths |
- 2,307 sqft
Single-Family Home
Built in 2025
7,841sqft lot
2 car garage
$119/sqft
Listed 2 days ago
Property Description
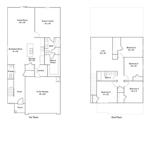
The Crane floorplan at The Maple in Inman, SC, is designed to both comfort and convenience, making it the perfect family home. With 4 bedrooms and 2.5 bathrooms, this two-story layout is ideal for modern living. The first floor features a spacious family room that seamlessly connects to the kitchen and breakfast area, creating an open, welcoming space for family gatherings and daily life. A two-car garage adds convenience and functionality. Upstairs, you'll find a versatile loft, perfect for additional living or play space, along with four restful bedrooms, including a large owner’s suite that serves as a private retreat. This floorplan has everything a growing family needs, blending practicality with comfort. It's the ideal home for making lasting memories with your loved ones. It's ideal for families seeking a peaceful neighborhood with convenient connections to Greenville and Spartanburg.
- Listing Status:
- Active
- Listing Office:
- LENNAR CAROLINAS, LLC : 980-244-8966
- Listing Agent:
- Katherine Jarrett : 864-433-1015
- MLS ID:
- 330483

- General: Aluminum/Vinyl Trim
- Style: Craftsman
- Parking: 2 Car AttachedGarage Door Opener
- Roofing: Composition
- General: StoneVinyl SidingTwoSlab
- HOA Amenities: Street LightsCommon AreaStreet LightsAnnually
- Originating MLS: spartanburg
- School District: 6 Sptbg Co
- County: Spartanburg
- Driveway: Paved-Concrete
- Zoning: PO 2-42-00-045.03
- Water: Public
- Sewer: Public Sewer
- Source: spartanburg
This listing courtesy of Katherine Jarrett, LENNAR CAROLINAS, LLC
Monthly Payment
- Principal & Interest $
- Property Taxes $
- Home Insurance $
- VA Funding Fee $
Location
Schools Nearby
Boiling Springs Intermediate School
2055 Hanging Rock Rd, Boiling Springs, SC, 29316
Grades 5-5
2.06 miles away
Boiling Springs Middle School
4801 Highway 9, Inman, SC, 29349
Grades 6-8
3.02 miles away
Boiling Springs High School
2251 Old Furnace Rd, Boiling Springs, SC, 29316
Grades 9-12
4.39 miles away






